Ürün Fotoğrafı

Hava Kanalı

Hava kanalları, tesislerde havalandırma ve pnömatik taşıma sistemlerinin önemli bir parçasıdır. Hava akışını yönlendirir ve basınç kayıplarını minimize eder. Farklı çap ve malzeme seçenekleri ile çeşitli uygulamalara uyum sağlar. Paslanmaz çelik ve alüminyum gibi dayanıklı malzemelerden üretilir. Montaj ve bakım kolaylığı sunar. Enerji verimliliğini artırarak sistem performansını destekler. Sızdırmaz bağlantı elemanları ile hava kaçaklarını engeller. Gürültü önleyici tasarımlarla sessiz çalışma sağlar. Isı yalıtımlı modelleri mevcuttur. Endüstriyel tesislerde temiz ve sağlıklı hava dolaşımını sağlar. Modüler yapısı sayesinde sistem genişletmeye uygundur. Uzun ömürlü ve dayanıklı yapısıyla yatırım maliyetini düşürür.

Büyültmek için resime tıkla.

Teknik Fotoğraf
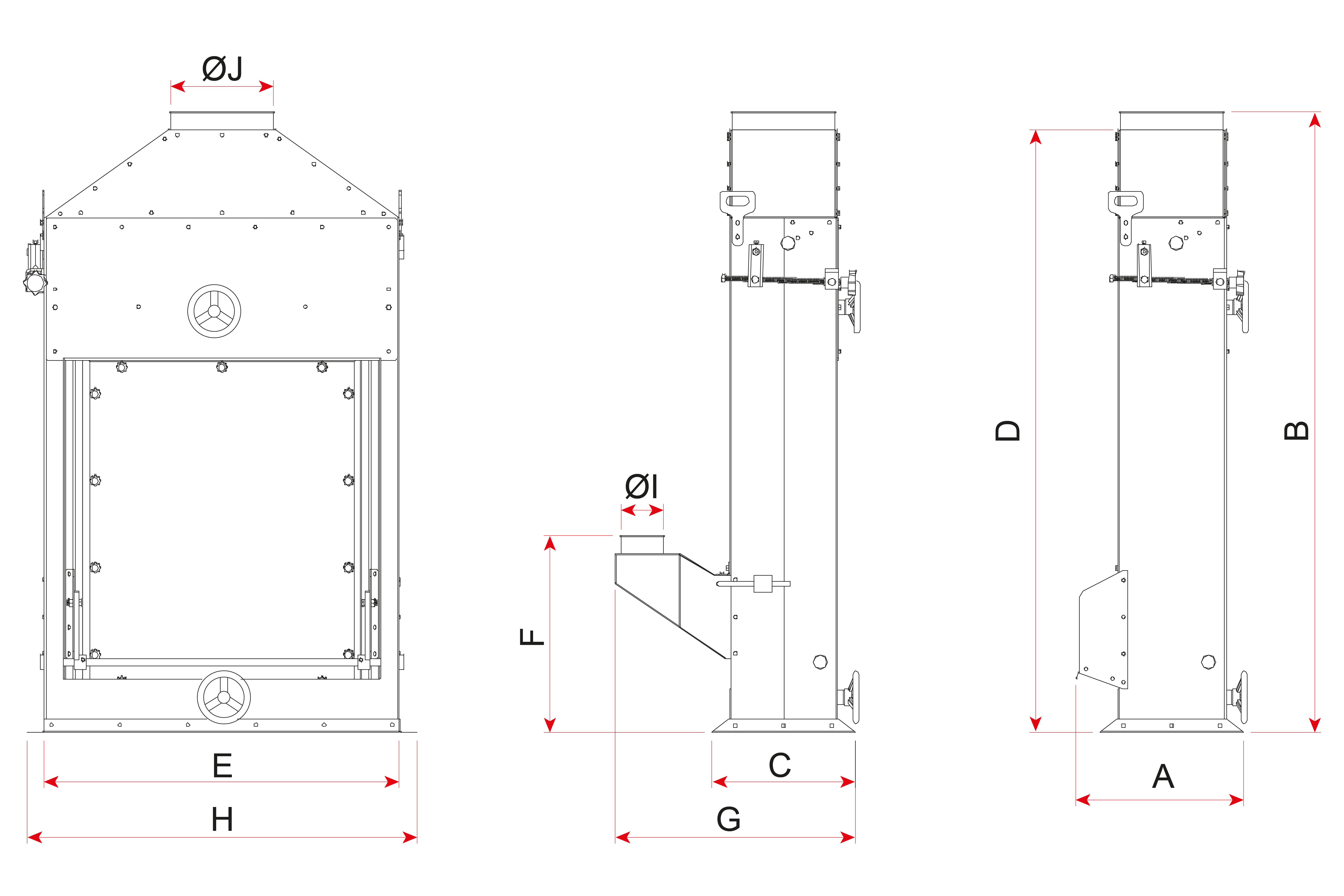
Teknik Tablo Fotoğrafı
PDF Icon
Ürün Katalogunu Görüntüle
Kataloğu Görüntüle